Úprava zpevněných povrchů kolem budovy II
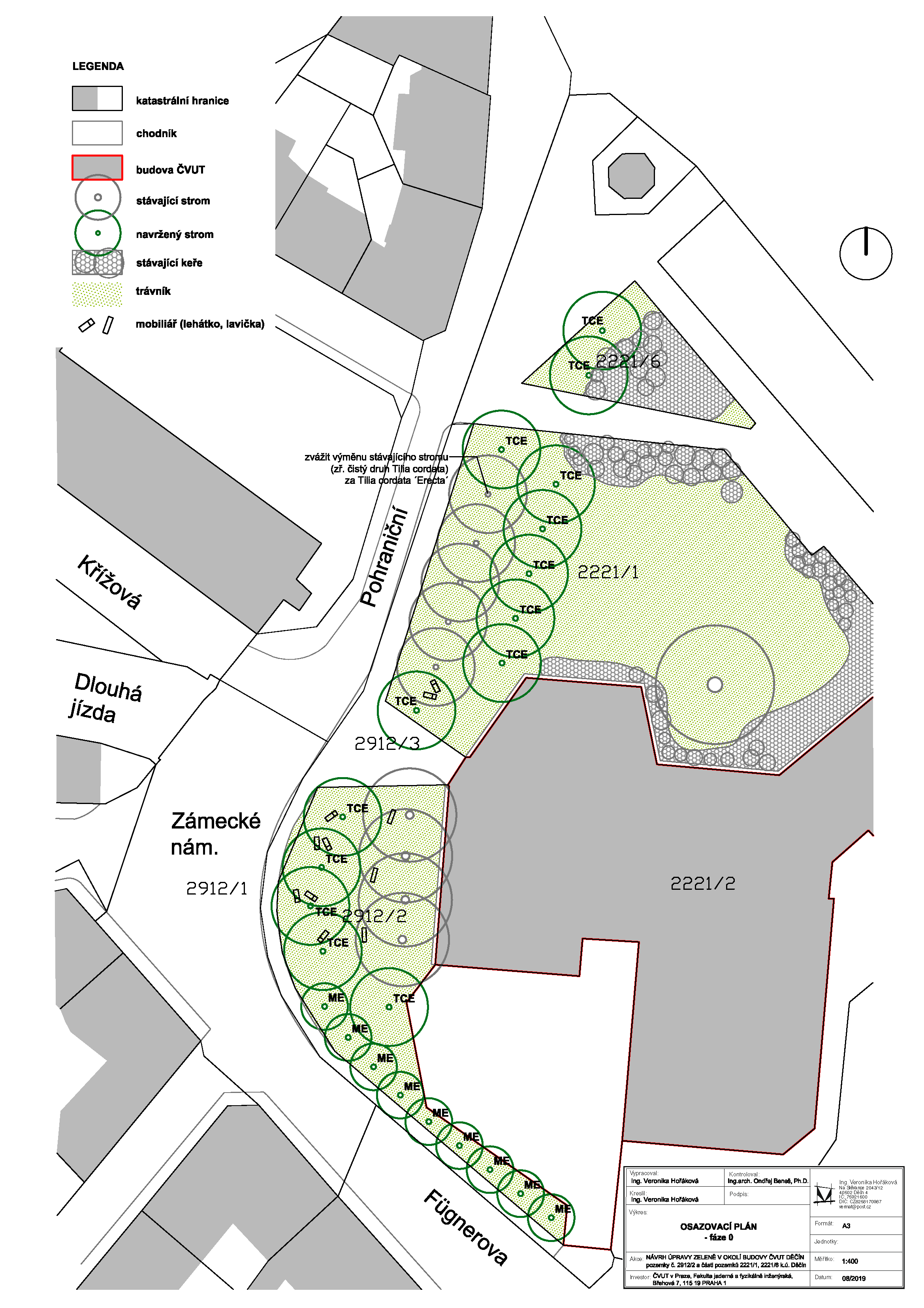
V polovině dubna 2025 byla zahájena 2. etapa revitalizace zpevněných ploch kolem budovy ČVUT. Tato etapa zahrnuje chodník před zadním vstupem budovy, směrem k Zámeckému náměstí. Při její realizaci dojde nejen k výměně asfaltového povrchu za kamennou dlažbu, ale i k mírné modifikaci průběhu chodníku a k vytvoření nové mlatové cesty vedoucí mezi původními a nově vysazenými stromy, viz obrázek Etapa 2. Naopak byl plně obnoven přístup hlavním vchodem do budovy. Tato etapa by měla být dokončena na v první polovině června 2025. Za snížený komfort během stavby se omlouváme, ale věříme, že výsledek bude stát za to. Jak se můžete podívat na fotografii "Zadní vchod - původní stav", povrch chodníku už výměnu opravdu potřeboval. Celý projekt však kromě zlepšení estetiky okolí klade důraz hlavně na výměnu nepropustných vrstev (asfalt, beton) za propustné (dlažba se spárami, mlatové cesty). Smyslem je umožnit vsak dešťových srážek do podloží místo odvodu do dešťové kanalizace.
První fáze projektu, chodník vedoucí k hlavnímu vchodu máme za sebou, nyní už dojde jen k dílčím opravám, zarovnání a zatravnění zelených ploch. Chodci už mohou tuto plochu používat.
Spolufinancování celé akce je zajištěno z Evropských fondů z Operačního programu Životní prostředí 2021—2027, která se na výměně nepropustných povrchů za propustné podílí z 81 %. Zbývající část nákladů je hrazena z rozpočtu Fakulty jaderné a fyzikálně inženýrské ČVUT, která má již 30 let budovu a přilehlé pozemky ve svém vlastnictví. Město Děčín se z tohoto důvodu na revitalizaci nemusí a ani nemůže finančně podílet. Celá akce ovšem probíhá ve vzájemné dohodě a spolupráci tak, aby výsledný prostor vytvořil důstojné prostředí pro okolí vysoké školy, odpovídající své poloze s přímou návazností na historický střed města.
Více podrobností o projektu, jeho dalších etapách a související revitalizaci okolí najdete na našich stránkách v sekci "Budova/Okolí".
