Revitalizace zpevněných ploch

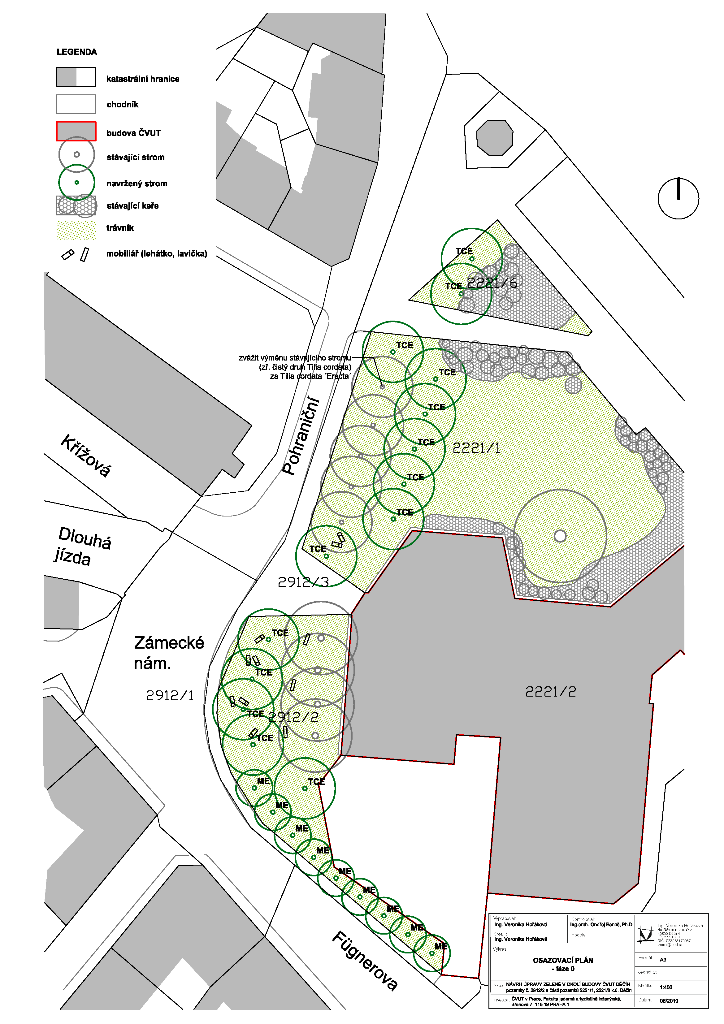
Před naší budovou v ulici Pohraniční došlo před koncem období vegetačního klidu k vykácení staré výsadby zeleně. Šlo o dlouho připravavanou akci. Prostor svým uspořádáním a kvalitou stávajících vegetačních prvků neodpovídal (funkčně ani esteticky) požadavkům na městskou zeleň. Keře před zadním vchodem byly navíc často využívány jako veřejné wc a hromadily se zde odpadky. Proto si v roce 2019 ČVUT nechalo zpracovat ideovou studii "Návrh úpravy zeleně v okolí budovy ČVUT". Tato studie připravila podklady pro novou podobu zeleně v ulici Pohraniční. Nelehkého úkolu vtisknout tomuto prostoru novou podobu se ujala Ing. Veronika Hóřáková pod vedením městského architekta Ing. arch. Ondřeje Beneše, Ph.D.

Vykácení keřů podléhalo povolení Odboru životního prostředí, který k tomuto kroku vydal povolení v březnu 2020. Situace kolem epidemie na jaře tohoto roku způsobila, že jsme nestihli provést kácení už v loňském roce. Povolení ke kácení nařídilo jako náhradní výsadbu 8 ks stromů. My jich ale máme v plánu vysázet rovnou 25 a to 16 lip a 9 okrasných jabloní. Hlavní myšlenkou ideové studie je optické oddělení historické zástavby kolem děčínského zámku od novodobé budovy ČVUT.

Jak se rodila idea nové podoby, jak by mohla vypadat konečná podoba po úpravách, ale také zmíněný nepořádek si můžete prohlédnout na fotografiích.

Skica arch. Beneše z pohledu z ulice Fügnerova Skica arch. Beneše z pohledu z ulice Myslbekova ideová studie ČVUT Vizualizace možné konečné podoby Vizualizace možné konečné podoby Stav po vykácení keřů Nepořádek ukrytý ve starých keřích. Kromě viditelného odpadu zde bylo i velké množství jehel a stříkaček.